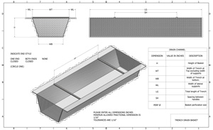
Drains
Drain strainers can be customized to your specific needs. Ours are made of stainless steel perforated material.
Drain strainers can be used for floor drains, trench drains, and we can also customize to most sink drains.
|
Click above to preview all drawings |





